Tachchen alle zusammen,
hab mir grad einen Stahltank, so um die 20 Liter, bei ebay gekauft.
Ich glaube, bin mir ziemlich sicher, dass es sich um einen ES Stahltank handelt. Leider ohne Befestigungsteile, Adapter. hat da vielleicht jemand noch was rumliegen oder Erfahrung mit Eigenbau? Auf manchen Bildern hängt der tank ja recht hoch.
Ahoi und schönen Abend, vielleicht kriege ich das Moped ja noch vor Sommerschluß zum rennen. Jens
Befestigung ES Stahlfass??
-
JR
- Wenigposter

- Beiträge: 10
- Registriert: Di Mai 08, 2007 23:44
- Wohnort: Hamburg
- Pivovar
- XT500-Online-Berater

- Beiträge: 957
- Registriert: Mi Mai 26, 2004 12:08
- Wohnort: Wöllstein (aAdW)
- Kontaktdaten:
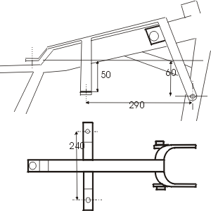
Ich hab mir auch grad für teuer Geld einen erstanden (Portugal-tour verlangts) und hab mir eine Art "Adapter" geschweist - sprich: nen kleinen Rahmen der den Tank trägt und nur an den Befestigungsmöglichkeiten des Originaltanks angebracht ist... ich kritzel mal schnell was in Corel-Draw - Fotoapperat ist am Sack...
Die Skizze ist zwar nicht für Nachbau geeignet könnte aber Ideen wachsen lassen - Der fette Tank lässt noch vollen Lenkeinschlag zu aber die Sitzposition nach vorne geht leider nicht weiter, ausser man würde den Tank zwecks Öl-Kontrolle demontieren...
Die Skizze ist zwar nicht für Nachbau geeignet könnte aber Ideen wachsen lassen - Der fette Tank lässt noch vollen Lenkeinschlag zu aber die Sitzposition nach vorne geht leider nicht weiter, ausser man würde den Tank zwecks Öl-Kontrolle demontieren...
Diskutiere niemals mit Idioten. Die ziehen Dich auf ihr Niveau runter - und schlagen Dich dann durch Erfahrung.
- Torsten
- XT-Forums-Guru

- Beiträge: 1339
- Registriert: Do Mär 18, 2004 9:50
- Wohnort: Berlin
Hallo,
@JR: Wenn es ein ES ist gehen da 25 Liter rein.
Wenn bedarf besteht kann ich die Halter gerne fotografieren und ausmessen.
Have A Nice Day
Torsten
ich habe von den Tanks schon mehrere gehabt, und bei allen war eine Kontrolle des Oelstands bei montiertem Tank moeglich, als Lenkanschlagbegrenzer musste ein Stueck Metall herhalten.Der fette Tank lässt noch vollen Lenkeinschlag zu aber die Sitzposition nach vorne geht leider nicht weiter...
@JR: Wenn es ein ES ist gehen da 25 Liter rein.
Wenn bedarf besteht kann ich die Halter gerne fotografieren und ausmessen.
Have A Nice Day
Torsten
- Pivovar
- XT500-Online-Berater

- Beiträge: 957
- Registriert: Mi Mai 26, 2004 12:08
- Wohnort: Wöllstein (aAdW)
- Kontaktdaten:
Re: danke
Das war mein Starcraft-Zockername vor ein paar Jahren, im battle.net war ich ein unbeliebter Gegner... pivovar, (könnte das was mit ober- oder untergärigem zu tun haben?)....
Diskutiere niemals mit Idioten. Die ziehen Dich auf ihr Niveau runter - und schlagen Dich dann durch Erfahrung.
Wer ist online?
Mitglieder in diesem Forum: 0 Mitglieder und 1 Gast